Продаж нежитлового приміщення під клініку/школу Печерськ Голосіївський ЖК А-136 (№ 237-438)
Ціна: 4 026 750 $

Характеристики
| Ціна: | 4 026 750 $ | 
|---|---|
| № об'єкта: | 237-438 | 
| Тип: | нежиле приміщення в житловому будинку | 
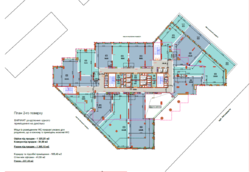
| Площа: | 1365 м2 | 
| Поверх: | 2 / 33 | 
| Додатково: | окремий вхід | 
Адреса: Київ, Голосіївський, Антоновича ул. (Горького), 136-138
ЖК А 136
Голосіївський район
Вул. Антоновича будинок 136-138
6 хв метро Палац Україна
Здавання будинку 1 кВ 2022 року
1365 м2
Вартість 4 026 750 дол
Без комісії для покупця
Продається весь 2-й поверх
Окрема вхідна група від житлових приміщень
Відмінно підійде під клініку, школу
Зацікавились? Телефонуйте:
Лариса: +38 066 956 91 16








 salarestate@gmail.com
 salarestate@gmail.com





