Продаж офісного приміщення (№ 2-311-707)
Ціна: 690 000 $

Характеристики
| Ціна: | 690 000 $ | 
|---|---|
| № об'єкта: | 2-311-707 | 
| Тип: | бізнес центр | 
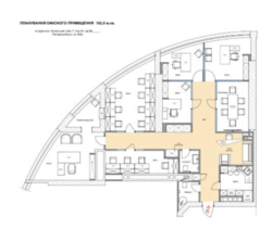
| Площа: | 162 м2 | 
| Кабінетів: | 6 | 
| Поверх: | 40 / - | 
Адреса: Київ, Печерський, Кловський узвіз, 7
Преміальний в усьому, сучасний, абсолютно новий офіс, розташований в самому центрі Печерська- на Кловському узвозі, 7, в найвищій будівлі України
на 40 поверсі. 
Стан: новий ремонт. Натуральний італійський мармур, дерев'яні панелі, австрійський паркет. Меблі Моltеni, Rimadesio, Poltrona Frau.
Кондиціонування і витяжки Daikin. Алюмінєві вікна. Сантехніка Falper, Newform,
CEA Design. Освітлення Davide Groppi, Henge, XAL..
ДЕТАЛІ
Площа офісу: 162 кв.м. Кількість робочих кабінетів: 6. Кількість робочих місць: 16, з них 3 партнерські, 1 – керівника (з зоною відпочинку), 2 – загальні робочі.
Кількість санвузлів: 2. 
Окрема переговорна, окрема повністю обладнана кухня.
Комунікації: всі міські комунікації з лічильниками, в т.ч. 30 кВт е/е.
Стан: дизайнерський високоякісний ремонт, повністю мебльований і
обладнаний.
Продумана ергономіка робочих місць, неповторна панорама на весь Київ з 40 поверху.
Рік побудови: 2012. В будівлі 4 швидкісних ліфта. Цілодобова охорона.
На даний час зданий в оренду на 3 роки надійному орендареві (юридична компанія) за орендною ставкою, яка забезпечує окупність 10 років. По завершенню воєнного стану оптимально підвищити орендну ставку до 45 $/кв.м, що забезпечить окупність менше 8 років.
2412







 salarestate@gmail.com
 salarestate@gmail.com





