Аренда офиса 1593кв.м На Подоле (№ 1-474-260)
Ціна: 20 $

Характеристики
| Ціна: | 20 $ | 
|---|---|
| № об'єкта: | 1-474-260 | 
| Тип: | бізнес центр | 
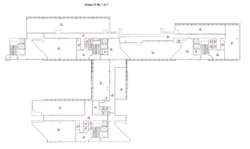
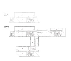
| Площа: | 1593 м2 | 
| Поверх: | 5 / 5 | 
| Додатково: | кондиціонер, парковка | 
Адреса: Київ, Подільський, Ильинская ул., 8, м. Контрактова площа
Аренда офиса 1 593 м.кв Open Space
- Адрес: Київ, вул. Іллінська, 8
 масив Поділ
- Площа 1 593.1 м.кв open space
- Ціна 20$+ 5$ OPEX за м.кв
- КЗП 1.15
- 4,5 поверх
- Без комісії!
 Є кухня та серверна!
 стм. «Контрактова площа», близько 5хв. пішки
 Підземний паркінг
 154 паркомісця
 Територія БЦ і вхідні групи охороняються цілодобово. 
 Діє система контролю доступу. 
 Доступ для орендарів 24 години на добу / 7 днів на тиждень.









 salarestate@gmail.com
 salarestate@gmail.com





