Головна >> Продаж квартир >> Об'єкт №213240939

Продаж однокімнатної квартири в ЖК TARYAN TOWERS  (№ 213-240-939)

Продаж однокімнатної квартири в ЖК TARYAN TOWERS фото 1

Ціна: 248 000 $

Характеристики

Ціна: 248 000 $
№ об'єкта: 213-240-939
Кімнат: 1 розд
Поверх: 24 / 31 ліфт
Площа: 62,05 / 16,44 / 27,05 м2
Санвузол: 1
Балкон: тераса
Додатково: новобудова

Адреса: Київ, Печерський, Іоанна ПавлаІІ, 12, м. Печерська

Продається простора 1-кімнатна квартира з терасою в преміальному ЖК “Башти Майбутнього”
Башта 3 — у стані будівництва
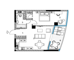
Планування: 1А
Поверх: 24
Планування та основні характеристики
•1 простора спальня
•Кухня-вітальня — 27,5 м²
•Житлова площа — 16,44 м²
•1 санвузол
•Тераса та гардеробна
•Загальна площа — 62,05 м²
•Поверховість будинку — 31
•Висота стелі — 3 м

Про комплекс
“Башти Майбутнього” — інноваційний преміум-комплекс без аналогів в Україні.
Сучасний 31-поверховий будинок у серці Києва, із загальною площею понад 145 000 м², створений для максимально комфортного життя.

Інфраструктура комплексу
•Власний приватний дитячий садок-школа
•Ігрові зони, кілька басейнів для дітей і дорослих
•Преміальний торгово-розважальний центр
•4-рівневий підземний паркінг:
-1 — для гостей та відвідувачів бутик-галереї
-2, -3, -4 — для резидентів

Сучасні технології та безпека
•Система “Розумний дім”
•Цілодобовий автоматизований моніторинг інженерних систем
•17 преміальних ліфтів Schindler 5500 (швидкість 3 м/с, вантажопідйомність до 1000 кг)
•Панорамне скління Guardian SunGuard від підлоги до стелі
•Цегляні міжквартирні стіни
•Експлуатована покрівля з унікальними концепціями для кожної башти
•Поквартирні лічильники електроенергії, води та тепла
•Охоронювана територія, відеоспостереження 24/7, картковий доступ до ліфтів

Фасади

Сучасний дизайн із панорамним склінням та динамічним підсвічуванням, що підкреслює футуристичну архітектуру комплексу.

Локація
Комплекс розташований у самому центрі Києва: зручна транспортна розв’язка, розвинена інфраструктура та все необхідне для комфортного життя — у пішій доступності.
Телефонуйте!
У нас для вас є багато цікавих пропозицій!
2412

Об'єкт на карті

Замовити зворотній дзвінок