Продаж 2-кімнатноі квартири в ЖК TARYAN TOWERS (№ 213-240-931)

Ціна: 335 200 $
Характеристики
| Ціна: | 335 200 $ |
|---|---|
| № об'єкта: | 213-240-931 |
| Кімнат: | 2 розд |
| Поверх: | 28 / 31 ліфт |
| Площа: | 83,8 / 31,89 / 24,5 м2 |
| Санвузол: | 2 |
| Додатково: | новобудова |
Адреса: Київ, Печерський, Іоанна Павла ІІ, 12, м. Печерська
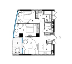
Продається простора 2-кімнатна квартира з терасою в преміальному комплексі “Башти Майбутнього”
Можливе розтермінування.
Башта 2 — здана.
Поверх: 28
Планування: 2В
Планування та характеристики
•Дві окремі просторі кімнати
•Кухня-вітальня — 24,05 м²
•Житлова площа — 31,89 м²
•Два санвузли
•Тераса та гардеробна
•Загальна площа — 83,8 м²
•Висота стелі — 3 м
Про комплекс
“Башти Майбутнього” — найінноваційніший житловий комплекс країни, аналогів йому немає в Україні.
31-поверховий преміум-комплекс у самому серці Києва, загальною площею понад 145 000 м².
Інфраструктура
•Власний дитячий садок-школа
•Ігрові зони, кілька басейнів для дітей і дорослих
•Преміальний торгово-розважальний центр
•4-рівневий паркінг:
•-1 — для гостей та відвідувачів бутик-галереї
•-2, -3, -4 — для резидентів
Технології та безпека
•Система “Розумний дім”
•Автоматизований моніторинг інженерних систем 24/7
•Преміальні ліфти Schindler 5500
(17 ліфтів, швидкість 3 м/с, вантажопідйомність до 1000 кг)
•Панорамне скління Guardian SunGuard від підлоги до стелі
•Цегляні міжквартирні стіни
•Експлуатована покрівля з індивідуальними концепціями для кожної башти
•Поквартирні лічильники електроенергії, води та тепла
•Охоронювана територія, відеоспостереження 24/7, контроль доступу, карткові ключі для ліфтів
Фасади,
Сучасні архітектурні рішення, панорамне скління та динамічне підсвічування створюють унікальний стиль комплексу.
Локація
Один із ключових плюсів комплексу — центральне розташування, що забезпечує максимальний комфорт та доступність усієї міської інфраструктури.
Телефонуйте! У нас для вас є багато цікавих пропозицій! 2412














