Головна >> Продаж квартир >> Об'єкт №213219093

Продається квартира Київська, Вишневе  (№ 213-219-093)

Продається квартира Київська, Вишневе фото 1

Ціна: 51 000 $

Характеристики

Ціна: 51 000 $
№ об'єкта: 213-219-093
Кімнат: 1
Поверх: 17 / 17
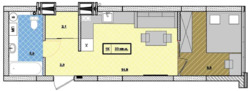
Площа: 33 / - / 14 м2

Адреса: Київська, Вишневе

1к пентхаус з ремонтом і панорамним видом в ЖК «Акварелі-2», Продам стильну 1К квартиру в ЖК «Акварелі-2» у м. Вишневе. Ремонт новий, щойно завершений! Можливий продаж через 'Є-Оселя'. Ідеальний варіант для молодої сім’ї або під оренду. Продумане планування, 3-метрові стелі, якісний ремонт, меблі-лофт із натурального дерева і чудовий вид з вікон — квартира повністю готова до життя. У квартирі: - окрема спальня з панорамним склінням, двоспальним ліжком і місцем під шафу-купе, барний столик біля вікна — ідеальне місце для ранкової кави; - кухня-вітальня (14 м?) з ТВ-зоною, розкладним диваном (ще додаткові 2 спальні місця); - в санвузлі (5 м?) встановлені: ванна, бойлер 80 л, пральна машина, електрична сушарка рушників, стільниця з натурального дуба із накладним умивальником; - передпокій з гардеробом. Технічні переваги: - стіни з червоної цегли + утеплення 150 мм мінвати; - опалення — газова дахова котельня, на яку передбачено окремо електрогенератор; - 12 кВт виділена ел. потужність на квартиру, 3 фази, мідна електропроводка, автоматика Schneider Electric; - система «Відпустка» — одним вимикачем знеструмлюєш квартиру (крім холодильника); - багатотарифний електролічильник з нічним тарифом; - лічильник тепла — мінімальні витрати на опалення. Безпека: - відеоспостереження на території, у вестибюлі та на поверсі; - є технічна можливість, по домовленості з сусідами, влаштувати ключовий доступ на 17 поверх - каркасно-монолітний будинок з «ядром жорсткості»; - міцний, монолітний підвал з двома виходами. Інфраструктура: - на території: NOVUS 6000 м?, паркінг на 300 авто - можна придбатиu002Fорендувати паркомісце; - понад 60 комерційних об’єктів на території ( кафе, салони, магазини, клініка), при бажанні можна навіть не виходити з території ЖК. - парк 1 га з водоспадом, спортивний та дитячий майданчики - поруч — школа, дитсадок, McDonald’s — 5 хв пішки. Транспорт: - регулярна електричка до центру Києва (м. Вокзальна) — 30 хв, інтервал 15–30 хв; - є маршрутки в різні частини Києва; - на авто до центру Києва ~25–35 хв. Додатково: Податки мінімальні — квартира у власності понад 3 роки.
Вид обєкта: Вторинний ринок;
Тип будинку: Житловий фонд 2011-2020-і;
Тип стін: Цегляний;
Клас житла: Комфорт;
Планування: Роздільна;
Cанвузол: Суміжний;
Опалення: Власна котельня;
Меблювання: Так;
Побутова техніка: Холодильник, Варильна панель, Мікрохвильова піч, Пральна машина;
Мультимедіа: Кабельне, цифрове ТБ, Швидкісний інтернет, Wi-Fi;
Комунікації: Центральна каналізація, Електрика, Центральний водопровід;
Інфраструктура (до 500 метрів): Аптека, Зупинка транспорту, Школа, Супермаркет, ТРЦ, Лікарня, поліклініка, Дитячий садок, Парк, зелена зона, Дитячий майданчик, Відділення пошти, Бювет, Залізнична станція, Ресторан, кафе;

Об'єкт на карті

Замовити зворотній дзвінок