Продається квартира Київ, Голосіївський, м. Деміївська (№ 213-204-344)

Ціна: 61 000 $
Характеристики
| Ціна: | 61 000 $ | 
|---|---|
| № об'єкта: | 213-204-344 | 
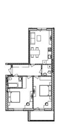
| Кімнат: | 2 | 
| Поверх: | 3 / 5 | 
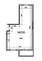
| Площа: | 74 / 33 / 20 м? м2 | 
Адреса: Київ, Голосіївський, м. Деміївська
Гетьманська вул. (Майкопська), 1-А
Простора квартира в цегляному будинку з вільним плануванням в ЖК Панорама, стан від будівельників. Будинок введено в експлуатацію, є право власності. Прекрасне місце розташування будинку. Навколо приватний сектор, тихо, зелено. Паркування біля будинку. У пішій доступності магазини, кафе, ресторани, Голосіївський парк із озерами, зупинка маршрутки.
Ст.м Голосіївська, Деміївська 15 хв пішки. 
Бетонно монолітний
Роздільне
Від будівельників вільне планування






















 salarestate@gmail.com
 salarestate@gmail.com





