Продаж 1-кімнатної квартири ЖК TRIIINITY (№ 213-125-564)

Ціна: 172 064 $
Характеристики
| Ціна: | 172 064 $ |
|---|---|
| № об'єкта: | 213-125-564 |
| Кімнат: | 1 |
| Поверх: | 2 / 23 |
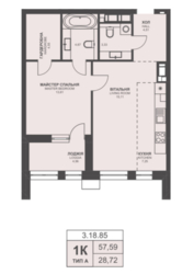
| Площа: | 56,3 / 28,72 / 7,25 м2 |
| Санвузол: | 1 |
| Балкон: | лоджія |
Адреса: Київ, Печерський, Василя Тютюнника, 39/2
Продається 1-кімнатна квартира в ЖК TRIIINITY (будинок 3, квартира 2.5)
•Площа: 56,23 м²
•Житлова: 28,72 м²
•Кухня: 7,25 м²
•Поверх: 2 з 23
•Черга: 3-тя
•Термін здачі: 30.09.2025
Про ЖК TRIIINITY:
TRIIINITY — це сучасний житловий комплекс преміум-класу з акцентом на комфорт, безпеку та приватність мешканців. Комплекс складається з трьох будинків висотою 21, 20 та 23 поверхи та налічує всього 409 квартир, що створює атмосферу клубного простору.
Переваги комплексу:
•Закрита територія з охороною 24/7 та системою доступу за картками
•Дворівневий підземний паркінг на 588 авто
•Лобі з консьєрж-сервісом, зонами очікування, зберігання та лапомийками
•Дві загальні тераси на даху з тренажерним залом, конференц-залом, BBQ-зонами та літнім кінотеатром
•Озеленена внутрішня територія з кафе, дитячими майданчиками, вуличними тренажерами та біговими доріжками
•Комерційні приміщення з окремими входами (двір — виключно для мешканців)
Особливості 3-го будинку:
•Лише 5 квартир на поверсі (3 на крило) — максимум приватності
•Всього 104 квартири у будинку
•3 швидкісні ліфти — зручний доступ до паркінгу та лобі
Додатково — доступні візуалізації інтер’єру та фасаду будинку.
За деталями та переглядом — звертайтесь!
У нас для вас є багато цікавих пропозицій!
2412











