ЖК 'Зарічний' вул. Зарічна, 1В, 3кімнати (№ 213-047-039)
Ціна: 230 000 $

Зарічна, 1В, Київ, Дарницький, м. Славутич
Характеристики
| Ціна: | 230 000 $ |
|---|---|
| № об'єкта: | 213-047-039 |
| Кімнат: | 3 |
| Поверх: | 3 / - |
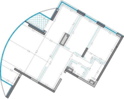
| Площа: | 124 / - / - м2 |
Опис
Пропонуємо вам чудову можливість стати власником простірної квартири площею 124,5 м² у одному з найкращих житлових комплексів міста – ЖК “Зарічний”. Розташована на 3-му поверсі, ця квартира поєднує в собі комфорт і стиль у кожній деталі.
“Зарічний” – це комплекс комфорт-класу, що знаходиться на першій лінії від Дніпра, із чудовим видом на річку. Тут ви знайдете все, що потрібно для комфортного життя: сучасні будинки, побудовані за монолітно-каркасною технологією, та розвинену інфраструктуру для вашого зручності. На території комплексу є магазини, кафе, ресторани, футбольне поле, дитячі майданчики, аптеки, салон краси та фітнес-клуб – все для вашого комфорту та дозвілля.
Для вашої зручності передбачено підземний паркінг із ліфтом, який веде прямо на ваш поверх, а також гостьовий паркінг під будинком. Комплекс знаходиться на закритій території з цілодобовою охороною, що забезпечить вам відчуття безпеки і приватності.
Не втрачайте шанс стати частиною цього престижного комплексу – телефонуйте вже зараз, щоб дізнатися більше та записатися на перегляд!
2412













