Продається квартира Київ (№ 212-916-493)

Ціна: 55 500 $
Характеристики
| Ціна: | 55 500 $ |
|---|---|
| № об'єкта: | 212-916-493 |
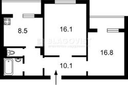
| Кімнат: | 2 |
| Поверх: | 3 / 14 |
| Площа: | 55 / - / 8 м2 |
Адреса: Київ
Ніколаєва Архітектора 15А,Троєщина,Деснянський р-н, Пропонується простора,затишна двохкімнатна квартира. Квартира з охайним ремонтом. Все є для комфортного життя. Квартира з дуже гарною атмосферою.Кімнати роздільні. Просторий корідор та кухня, два балкони.Кондіционер Midea, пральна машинка Indesit, новий бойлер Atlantic на 80 літрів. В квартирі є електрична плита,бойлер, пральна машина,кондиционер,кілька шаф та тумб. Охайні під'їзди. У кроковій доступності дитячий садок, три державні школи та є приватна школа. Поряд з будинком Деснянський зелений парк, у якому знаходиться кінотеатр, дитячі майданчики та гойдалки. У вільний час , вам буде, де приємно провести час. Поряд з будинком велика парковка. Запрошуємо вас на перегляд!.
Вид обєкта: Вторинний ринок;
Тип стін: Шлакоблочний;
Планування: Роздільна;
Cанвузол: Роздільний;
Опалення: Централізоване;
Меблювання: Так;
Побутова техніка: Холодильник, Пральна машина;
Інфраструктура (до 500 метрів): Дитячий садок, Школа, Зупинка транспорту, Супермаркет, ТРЦ, Парк, зелена зона, Дитячий майданчик, Аптека, Відділення пошти, Відділення банку, банкомат;


















