Продаж 1к квартири в ЖК Respublika (№ 212-906-954)

Ціна: 83 700 $
Характеристики
| Ціна: | 83 700 $ |
|---|---|
| № об'єкта: | 212-906-954 |
| Кімнат: | 1 розд |
| Поверх: | 6 / 8 ліфт |
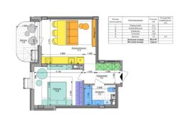
| Площа: | 43.2 / 13.8 / 17.3 м2 |
| Додатково: | новобудова |
Адреса: Київ, Голосіївський, м. Теремки
Продаж 1к квартири в ЖК Respublika
Голосіївський р-н бульвар Тадея Рильського ст.м Теремки
Поверх 6
Будинок вводиться у експлуатацію весною 2024 року, отримання документів у квітні.
Стан квартири - від будівельників, без ремонту.
Остаточна площа по замірах БТІ - 43,2 кв м.
Продажа по переуступці
Телефонуйте та поїхали
Код: 88









