Продається квартира Київ, Дніпровський (№ 212-904-565)

Ціна: 47 000 $
Характеристики
| Ціна: | 47 000 $ |
|---|---|
| № об'єкта: | 212-904-565 |
| Кімнат: | 3 |
| Поверх: | 3 / 9 |
| Площа: | 59 / - / 7 м2 |
Адреса: Київ, Дніпровський
Продаю 3-кімнатну у Києві.
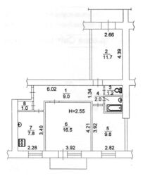
Продаю 3-кімнатну квартиру, Дніпровський район, вул. Новаторів, 4 на 3-му поверсі 9-ти поверхового цегляного будинку 1978 року побудови. Всі кімнати окремі, санвузол роздільний. Балкон та лоджія. Комірчина. Газ. Ліфт, меблі, житловий стан..
Вид обєкта: Вторинний ринок;
Тип стін: Цегляний;
Планування: Роздільна;
Cанвузол: Роздільний;
Опалення: Централізоване;
Меблювання: Так;
Побутова техніка: Плита, Духова шафа, Холодильник;
Комфорт: Ванна, Меблі на кухні, Балкон, лоджія, Ліфт;
Комунікації: Газ, Центральний водопровід, Електрика, Центральна каналізація, Вивіз відходів, Асфальтована дорога;
Інфраструктура (до 500 метрів): Дитячий садок, Бювет, Зупинка транспорту, Ринок, Магазин, кіоск, Супермаркет, ТРЦ, Парк, зелена зона, Дитячий майданчик, Аптека, Лікарня, поліклініка, Відділення пошти;











