Продається квартира Київ, Святошинський, Октябрьская (Новобеличи) ул. (№ 212-818-406)

Ціна: 41 500 $
Характеристики
| Ціна: | 41 500 $ |
|---|---|
| № об'єкта: | 212-818-406 |
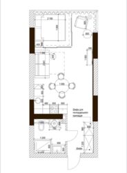
| Кімнат: | 1 |
| Поверх: | 10 / 27 |
| Площа: | 37 / - / 20 м2 |
Адреса: Київ, Святошинський, Октябрьская (Новобеличи) ул.
Будинок знаходиться за п’ятнадцять хвилин пішки до метро Академмістечко (вул. Генерала Наумова). ЖК 4U.1-кімн . 37 м кв ціна 41500дол
Вид обєкта: Новобудова;
Тип будинку: Житловий фонд від 2021 р.;
Назва ЖК: 4U;
Тип стін: Монолітний;
Клас житла: Комфорт














