Продаж 2к квартири в ЖК White Lines (№ 212-786-972)

Ціна: 190 917 $
Характеристики
| Ціна: | 190 917 $ |
|---|---|
| № об'єкта: | 212-786-972 |
| Кімнат: | 2 |
| Поверх: | 18 / 23 |
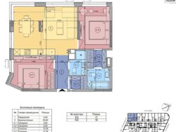
| Площа: | 70 / 25 / 29 м2 |
Адреса: Київ, Голосіївський, Васильківська, 1, м. Голосіївська
Продаж 2к квартири в найкращому ЖК White Lines
ЖК активно добудовується, завершення і документи вже в найближчі 1-2 міс
Дуже вдале, функціональне планування, кімнати правильної форми: простора кухня студіо
2 санвузли, 2 окремі спальні
Квартира має чудовий вид на ліс (див. фото) та у двір, тиха сторона, панорамні вікна, 18 поверх (стеля 3м), 103 будинок.
На перших поверхах:
- дворівневий підземний паркінг на 685 місць
- супермаркет «Сільпо»
- кінотеатр «Мультіплекс»
- фітнес-клуб ENERGYM
- 1га закритого внутрішнього двору з зеленню та дитячими майданчиками










