Продається 3к квартира в ЖК Баговутівський (№ 212-772-775)

Ціна: 102 000 $
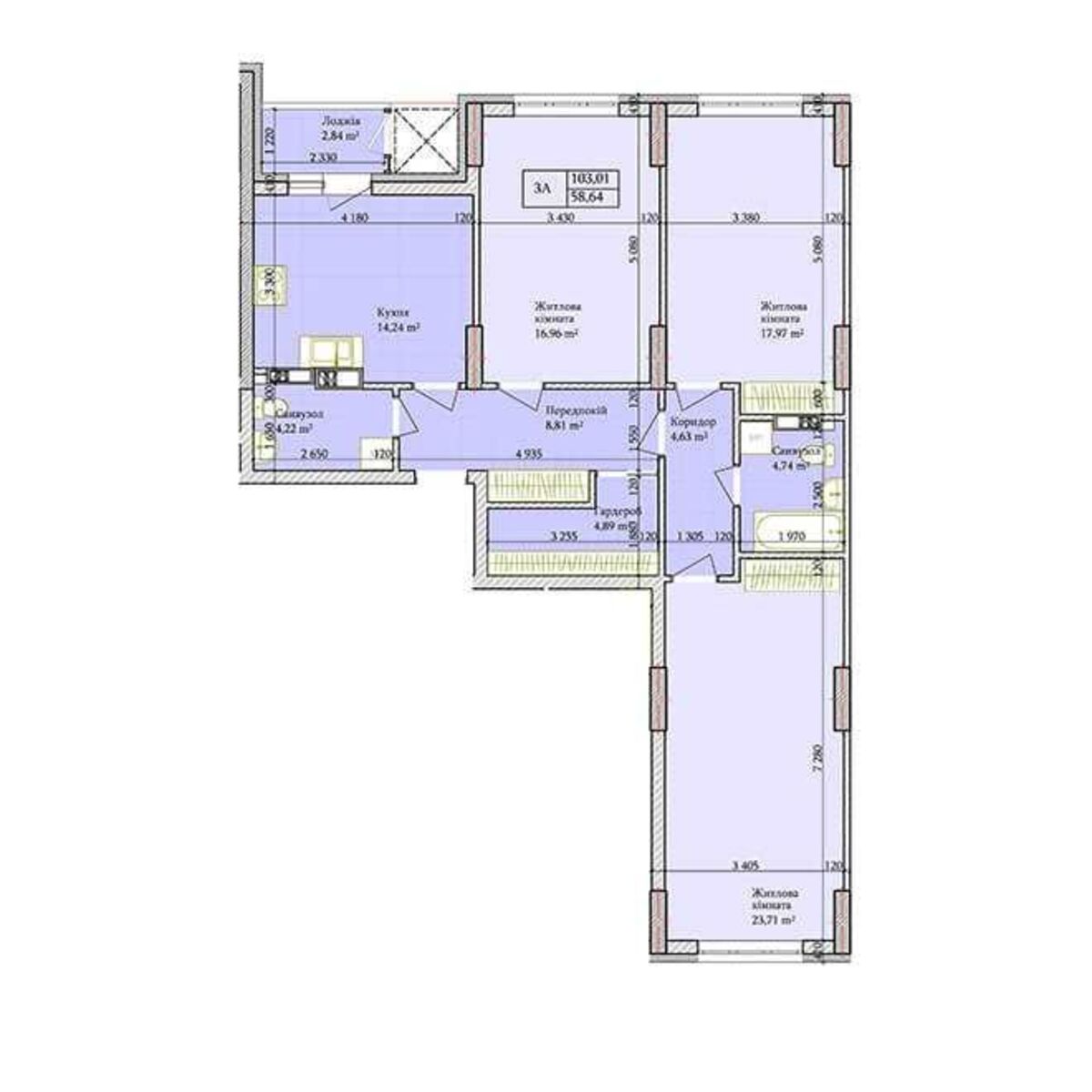
Характеристики
| Ціна: | 102 000 $ |
|---|---|
| № об'єкта: | 212-772-775 |
| Кімнат: | 1 |
| Поверх: | 21 / 25 |
| Площа: | 101 / - / 14 м2 |
Адреса: Київ, Шевченківський, Багговутівска, 17-21
Продається 3к квартира 102 м2 в ЖК Багговутівський, р-н Лукянівка
Продається видова 3к квартира 102 м2 по вул. Багговутівска 17-21 в ЖК Багговутівський. Введено до експлуатації
Квартира знаходиться на 21 поверсі
Квартира двостороння, розташована на 21 поверсі з чудовими краєвидами на місто. Функціональне планування з просторим гардеробним, 2 санвузли.
Поряд м. Лукянівська, ТЦ Променада, Сільпо, Novus, Sportlife, лікарня, школа. Парк Котляревського 9 хвилин.
Продаж по переуступці майнових прав. Вже можна оформлювати право власності
Також є можлівисть придбати місце в підземному паркінгу
Деталі:
- утеплення фасаду мін. ватою
- двокамерні металопластикові вікна
- чорнове оздоблення від будівельників
- Висота стель 2,7 м
- власна котельня
- ліфт спускається у підземний паркінг.
Вид обєкта: Новобудова;
Тип будинку: Житловий фонд від 2021 р.;
Назва ЖК: Багговутівський;
Тип угоди: Від забудовника;
Тип стін: Цегляний;
Клас житла: Комфорт;
Планування: Роздільна;
Cанвузол: 2 і більше;
Опалення: Власна котельня;
Ремонт: Після будівельників;
Комфорт: Балкон, лоджія, Тераса, Паркувальне місце, Гостьовий паркінг, Підземний паркінг, Ліфт, Грузовий ліфт;
Інфраструктура (до 500 метрів): Дитячий садок, Школа, Зупинка транспорту, Супермаркет, ТРЦ, Дитячий майданчик, Аптека, Лікарня, поліклініка, Ресторан, кафе, Магазин, кіоск, Метро







