Продаж 1к квартири ЖК Русановская Гавань (№ 212-769-838)

Ціна: 80 000 $
Характеристики
| Ціна: | 80 000 $ |
|---|---|
| № об'єкта: | 212-769-838 |
| Кімнат: | 1 |
| Поверх: | 14 / 24 |
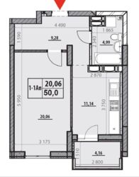
| Площа: | 50 / - / 14 м2 |
Адреса: Київ, Никольско-Слободская ул., 8
Продається 1к квартира в ЖК Русанівська Гавань
Квартира з видом на Дніпро
Право власності надано. Квартира в ЖК «Русанівська гавань», на 14/24 поверх будинку, площа 50 кв.м., секція – 22, вул. Микільсько-Слобідська 8
У квартирі розпочато ремонт, розведено мідне проведення, радіатори, лічильники на воду, електрики, тепла. Винесено траси під кондиціонери. Дизайн проект. Будинок зданий. Право власності надано!
Вид об'єкту: Новобудова;
Назва ЖК: Русанівська Гавань;
Інфраструктура (до 500 метрів): Кінотеатр, театр, Школа, Магазин, кіоск, Аптека, Парк, зелена зона, Супермаркет, ТРЦ, Відділення банку, банкомат, Відділення пошти, Ресторан, кафе, Дитячий садок, Дитячий майданчик, Ринок, Остановка транспорту , Метро, Бювет, Лікарня, поліклініка;
Ландшафт (до 1 км): Парк, Річка

















