продаж окремої будівлі (№ 2-493-328)
Ціна: 3 000 000 €

Характеристики
| Ціна: | 3 000 000 € |
|---|---|
| № об'єкта: | 2-493-328 |
| Поверх: | 4 / 4 |
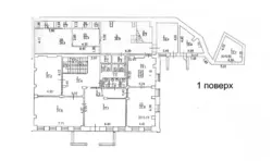
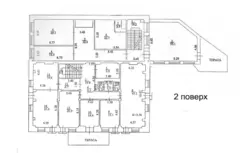
| Площа: | 1519 м2 |
| Ділянка: | 15 сот |
Адреса: Київ, Соломенський, Жилянская ул., 72а
• Адреса: м. Київ, Жилянська 72А •Загальна площа приміщення 1519м2
• Офісна будівля закритого типу 4 поверхове 2 каміни діючі Мідний дах
Нова споруда 2008 року
Усі нові комунікації Земля 15 соток (кадастровий номер) використання
Закрита територія 15 паркувальних місць
Охорона цілодобова
Можливість поділу на 2 окремі блоки
Зі своїми окремими входами
Якісний свіжий ремонт
Підвал сухий (бомбосховища)
•Наземна парковка, що охороняється.
•Розташування в центральній частині міста
•Зручна транспортна розвязка
•Метро «Університет» -15 хвилин ходьби.
•Презентабельна вхідна група та рецепція
•Наявність усіх необхідних комунікацій та систем: зовнішньої та внутрішньої безпеки та захисту, карткового доступу, вентиляції, індивідуального кондиціювання, опалення, телефонні та компютерні мережі, пожежна та охоронна сигналізації, відеоспостереження, швидкісний інтернет
•Офіс представницького класу
• LED-освітлення



























