Продажа отдельного здания (Наумова 29б) Новобеличи (№ 2-478-155)
Ціна: 75 000 $

Характеристики
| Ціна: | 75 000 $ |
|---|---|
| № об'єкта: | 2-478-155 |
| Тип: | інше |
| Поверх: | 1 / 1 |
| Площа: | 107 м2 |
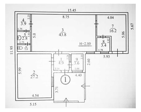
Адреса: Київ, Генерала Наумова ул., 29б
Продажа отдельного здания (Наумова 29б) Новобеличи
Продажа отдельно-стоящего здания по адресу Наумова 29б (Киев, Святошинский район, Новобеличи, выезд на Ирпень). Общая площадь 107м2, один этаж (можно надстроить второй), все необходимые коммуникации, здание в хорошем техническом состоянии, фундамент бутобетонный ленточный, наружные стены кирпичные. Идеально: магазин, офис, мастерская, склад, шоу рум, лаборатория, ветклиника, небольшой образовательный центр и т.д. Отличное, перспективное предложение под инвестицию и сдачи в аренду. Частная собственность. Большой жилой массив, удобная транспортная развязка, пешеходный трафик, ЕКОмаркет, парковочные места. Срочно. Торг до продажи.











