Продається комерційне приміщення вільного призначення в ЖК 'Чікаго', площа 313 кв.м БЕЗ КОМІСІЇ !!! (№ 2-470-203)
Ціна: 1 $

Характеристики
| Ціна: | 1 $ |
|---|---|
| № об'єкта: | 2-470-203 |
| Тип: | торгівельні площі, кафе, бар, ресторан, об'єкт сфери послуг, готель, інше |
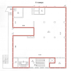
| Поверх: | 3 / 30 |
| Площа: | 313 м2 |
| Додатково: | окремий вхід |
Адреса: Київ, Голосіївський, Антоновича ул. (Горького), 44, м. Олімпійська
1 приміщення
30 поверхів
Площа 313 м² • 313 м²
Пропозиція без комісійних
Опис
Продається комерційне приміщення 313м2 в ЖК 'CHICAGO Central House' БЕЗ%
3 поверх
Ідеально підійде ресторан, магазин, під офіс та інше
Окрема вхідна група зі сходами та ліфтом. Другий вхід в приміщення зі сторони внутрішнього двору жилої частини комплексу
Вже введений в експлуатацію
Пішохідна інтенсивніст 35680 осіб на добу
CHICAGO Central House розташований на перетині центральних вулиць столиці − Жилянської та Антоновича. Це той щасливий випадок, коли життя в історичному районі міста поєднується з енергетикою ділових кварталів. Вам знадобиться всього три хвилини, аби дійти до головного спортивного комплексу “Олімпійський”, та близько п’яти хвилин, аби доїхати до Хрещатика.
Дзвоніть прямо зараз за всіма питаннями за номером:











