Продається об'єкт Київ (№ 24-103-325)
Ціна: 80 000 $

Характеристики
| Ціна: | 80 000 $ |
|---|---|
| № об'єкта: | 24-103-325 |
| Поверх: | 3 / 6 |
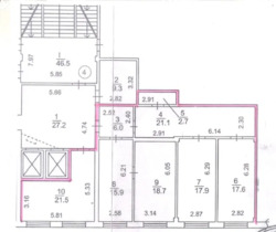
| Площа: | 120 м2 |
Адреса: Київ
Продажа помещения Гавела,4,офис,клиника,салон 120 м.,отдельный вход.
Помещение в административном здании на Лепсе,4.120 м с отдельным входом и лифтом.Идеально под клинику косметологии или салон красоты(помещении стена в стену с модной работающей стоматологической клиникой).Можно под любой офис или шоурум.Есть возможность покупки дополнительной площади. Оживленное место:кафе,рестораны,АВТ Бавария.Парковка..
Відстань до найближчого міста: У місті;
Рік побудови u002F здачі: 1990 - 2000;
Cанвузол: Так;
Опалення: Комбіноване;
Ремонт: Ні;
Комфорт: Меблі на кухні;
Комунікації: Електрика, Центральний водопровід, Асфальтована дорога, Центральна каналізація;
Інфраструктура (до 500 метрів): Транспортна розвязка, Офіси, бізнес центр, Супермаркет, ТРЦ, Метро, Стоянка, парковка, гараж, Ринок, Парк, зелена зона, Житловий масив;
Ландшафт (до 1 км.): Парк;











