Аренда торгового помещения в проходном месте Дарницкий р-н (№ 1-573-752)
Ціна: 69 000 грн. + комунальні

Характеристики
| Ціна: | 69 000 грн. + комунальні | 
|---|---|
| № об'єкта: | 1-573-752 | 
| Тип: | торгівельні площі, об'єкт сфери послуг | 
| Поверх: | 2 / 2 | 
| Площа: | 230 м2 | 
| Додатково: | окремий вхід, кондиціонер, парковка | 
Адреса: Київ, Дарницький, Ревуцкого ул., 12а, м. Харківська
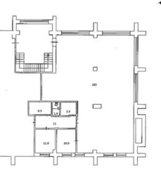
Видовое помещение под магазин одежды, промтоваров или подобный вид деятельности в торговом центре 'Позняки', в проходной зоне непосредственно возле транспортной розвязки на Позняках. В комплексе находится: супермаркетт 'Сильпо', большой рынок. фитнес-клуб, магазины разных направлений, аптеки, салоны красоты и многое другое. Вход располагается непосредственно на очень оживленной пешеходной зоне, которая проходит через массив. Рядом оживленная транспортная развязка между улицами Анны Ахматовой и певуцкого с остановкампи Автобусов и трамвая. До метро 'Харьковская' - около десяти минут пешком. Помещение расположено на втором этаже, имеет два входа, площадь - 240 кв2. Состоит из большого торгового зала на 185 м2, кабинет, склад, кладовая, бытовая комната с душевой, санузел, коридор. Все коммуникации, пожарная и охранная сигнализации, кондиционеры. Есть парковка. Каникулы на въезд обсуждаются. Звоните!





 salarestate@gmail.com
 salarestate@gmail.com





