Оренда Складский приміщень від 1001500 м2 (№ 1-573-637)
Ціна: 60 000 грн. + комунальні

Характеристики
| Ціна: | 60 000 грн. + комунальні | 
|---|---|
| № об'єкта: | 1-573-637 | 
| Тип: | об'єкт сфери послуг, інше | 
| Поверх: | 1 / 2 | 
| Площа: | 500 м2 | 
| Додатково: | окремий вхід, кондиціонер, парковка | 
Адреса: Київ, Соломенський, Ушинського вулиця, 40, м. Шулявська
Без комісії 
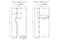
площа другого поверху 429 м2, висота - 3,2 м.
Електрика 150 кВт (можемо обговорювати збільшення електричної потужності), водопровід та каналізація є.
Послуги бізнес парку
оренда конференц-залу
дитяча кімната
оренда парко-місця
послуги з ремонту.
оренда апартаментів
оренда велосипеду електрозаправка.
автоshuttle-bus від метро Шулявська та Вокзальна
зони відпочинку.
6 провайдерів інтернет
Звертайтесь за телефоном є різні площі , від 100 м2 до 1500м2
Орендна ставка 120 грн/м2, 40 грн/м2 експлуатація






 salarestate@gmail.com
 salarestate@gmail.com





