Здається об'єкт Кіровоградська, Кропивницький (Кіровоград), Героїв земляків (Короленка), 1А (№ 15-118-162)
Ціна: 270 грн.

Характеристики
| Ціна: | 270 грн. | 
|---|---|
| № об'єкта: | 15-118-162 | 
| Тип: | торгівельні площі | 
| Поверх: | 2 / 2 | 
| Площа: | 650 м2 | 
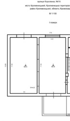
Адреса: Кіровоградська, Кропивницький (Кіровоград), Героїв земляків (Короленка), 1А
Оренда комерційної нерухомості вільні 130кв.м та 650кв.м., Договірна, Для бізнесу є два вільних приміщення на 1 та 2 поверсі. м. Кропивницький, вул. Героїв земляків (Короленка), 1А фасад будівлі виходить на центральну вулицю району Новомиколаївка - перший поверх приміщення 130.кв можливо різні варіанти(торгівля, офіс і т.д.) новий ремонт - другий поверх 650 кв.м (можливо розділити на кабінети від 60 кв.м 'опенспейс', тощо, сучасні панорамні вікна на весь фасад») Всі приміщення мають окремі входи На фасадній стороні є парковка 900 кв.м, опалення - котел пілети, вода, електрика, охорона. інтернет, відео нагляд. Готовність 100u002F95% - завершення під орендаря. Довгострокова оренда 500u002F270 грн, Договірна. Власник.
Відстань до найближчого міста: У місті;
Розташування: Окреме приміщення;
Тип обєкта: Торгово-офісний центр;
Рік побудови u002F здачі: Після 2015;
Cанвузол: Так;
Опалення: Власна котельня;
Комунікації: Центральний водопровід, Електрика, Каналізація септик, Асфальтована дорога;
Інфраструктура (до 500 метрів): Житловий масив, Офіси, бізнес центр, Відділення банку, банкомат, Ресторан, кафе, бар, Автовокзал, Транспортна розвязка, Шосе, траса;












 salarestate@gmail.com
 salarestate@gmail.com





