комерційне приміщення Дніпро на вул. Європейська 5, площа 600 кв.м (№ 15-117-987)
Ціна: 420 000 грн.

Характеристики
| Ціна: | 420 000 грн. | 
|---|---|
| № об'єкта: | 15-117-987 | 
| Тип: | торгівельні площі | 
| Поверх: | 1 / 1 | 
| Площа: | 600 м2 | 
Адреса: Дніпропетровська, Дніпро, Європейська, 5
Дніпро, Центр, вул. Європейська, 5, 1616
Комерційне приміщення
Вул. Європейська 5
Одноповерхова будівля
600 м?
Здається окремо розташоване одноповерхове комерційне приміщення в самому центрі міста, колишній ресторан Чемодан.
На даний момент триває ремонт і реконструкція.
Червона лінія.
Гарний пішохідний трафік.
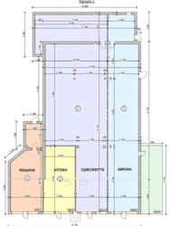
Планується 4 окремих входів з червоної лінії.
2 запасних виходи.
Свої ворота для вивантаження /завантаження товару, обладнання
Парковка перед будівлею
Свій внутрішній закритий двір
Заведено 380 Вт
Своя топочна (газ)
Вентиляція
Кондиціонування
Охорона 24/7
Пожежна сигналізація
Відеоспостереження
Власник робить свій базовий ремонт:
Підлогова плитка
Гіпсокартонні стіни
Вікна
Двері
Фасад
Окремий вхід для кожного приміщення з червоної лінії.
У приміщенні буде багато водних точок, каналізації.
Розвинена інфраструктура навколо.
Підійде під оренду ресторану, кафе, магазину одягу, аптеки, або будь-який інший вид діяльності.
Поруч знаходяться магазини АТБ, Варус, Сільпо, Єва, Нова Пошта, Розетка, торгові центри Пасаж, ЦУМ, Мост Сіті, Макдональдс, KFC, кафе та ресторани, парк Глоби, набережна, зупинка транспорту.























 salarestate@gmail.com
 salarestate@gmail.com





