Продаж таунхауса на вул. Котирло (№ 22-378-495)
Ціна: 2 720 000 грн.

Характеристики
| Ціна: | 2 720 000 грн. |
|---|---|
| № об'єкта: | 22-378-495 |
| Тип: | таунхаус |
| Поверхів: | 3 |
| Спалень: | 5 |
| Площа будинку: | 115 м2 |
| Додатково: | гараж, котеджне містечко |
Адреса: Київська, Києво-Святошинський, Крюковщина
Продаж таунхауса Крюківщина вул. Котирло
Таунхаус на стадії будівництва
Будинок знаходиться в чистому, екологічному районі. Cучасний проект з комфортним плануванням з загальною площею 115 м²
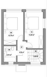
На першому поверсі розташована кухня-студія(27,81м2), вбиральня, гардеробна та кладова під сходами; на другому поверсі – дві просторих спальні(12.78м2; 13.44м2), санвузол та затишні балкончики, на третьому дві спальні, санвузол ідентично як на другому поверсі.
Будівництво за сучасними технологіями з використанням якісних матеріалів. Тип стін -цегляний. Невеличка прибудинкова ділянка, яка дозволяє розмістити авто, та має затишне подвір’я для зони відпочинку
Газ природний. Холодна вода свердловина
Будинок має комфортне та зручне розташування. Поруч знаходиться школа, супермаркети Новус та АТБ. До Києва лише 5км
Будинок знаходиться в приватному секторі та ідеально підійде для любителів тихого,заміського життя
Ціна 2.720.000₴ або краща пропозиція
Телефонуйте та поїхали дивитися
Код: 88


















