Продаж будинку Дарницький р-н (№ 22-372-315)
Ціна: 462 000 $

Характеристики
| Ціна: | 462 000 $ |
|---|---|
| № об'єкта: | 22-372-315 |
| Тип: | будинок |
| Поверхів: | 2 |
| Площа будинку: | 252 м2 |
| Ділянка: | 6 сот |
Адреса: Київ, Дарницький
Продаж будинку Дарницький р-н
Продаж будинку 2 поверхи, газоблок, утеплений мінеральною ватою, металопластикові вікна
Будинок може використовуватися 4 сім'ями, тому що в кожній із 4 спалень є свій сан. вузол, душ, умивальник, вбиральня
Будинок повністю укомплектований усім необхідним для житла - заходь та живи!
Меблі, освітлення, сантехніка, плитка, можна домовиться про 4 телевізори, аксесуари виробництва Італія, корпусні меблі виготовлені з масиву, пофарбованого екологічно чистими гіпоалергенними фарбами виробництва Італія, підлога плитка Італія. У будинку є камери відеоспостереження, Ви в будь-який момент можете подивитися, що робиться у Вашому будинку. Встановлено відеодомофон
У вітальні працює дров'яний камін.
Свердловина 70 м, система очищення води на весь будинок та окремо стоять фільтри для питної води., якісний септик (викачування 1 раз на 2 роки).
Закритий тупиковий провулок, всі сусіди довкола вже збудувалися.
Загальна площа будинку: 252 кв.м
Ділянка будинку: 6 соток.
Висувні ворота на електроприводі відчиняються з пульта.
Навіс під авто розрахований на 2-4 місця, виготовлений із монолітного полікарбонату, автополив.
Посаджено молоді дерева авбрикос, персик, груша та яблуня – перший урожай уже був. Також є 2 старі дерева: яблуня та слива.
На території є мангал, місце під ним покладено плиткою.
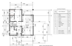
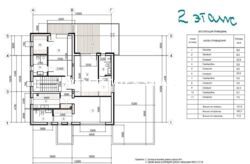
Функціональне планування будинку:
У зимовий час можна опалювати твердопаливним котлом, або електрокотлом (зроблено вихід для газового котла)
На ділянці є окрема будова з газоблоку та утеплена мінватою – генераторна, яка також служить і госп. приміщенням.
1-й поверх: топкова 12,1 м2, санвузол 2,3 м2, камінний зал (вітальня з кухнею) 58,1 м2, гостьова кімната 22,5 м2 (зі своїм сан вузлом та душовою 7,0 м2, вбиральні 6, 1 м2), підсобне приміщення.
2-й поверх: пральна 9,3 м2, ТРИ спальні зі своїми санвузлами, вбиральнями, душовими. В одній із спалень ванна RAVAK з гідромасажем та підсвічуванням (є відео роботи ванни).
У кожній із 4 спалень встановлені та працюють кондиціонери.
У кожному з 5 санвузлів тепла підлога
Побутова техніка: Посудомийна машина, Сушильна машина, Холодильник, Варильна панель, Мікрохвильова піч, Духова шафа, Плита, Пральна машина
Мультимедіа: Кабельне, цифрове ТБ, Швидкісний інтернет, Телевізор, Wi-Fi
Комфорт: Альтанка, мангал, Відеоспостереження, Підсобні приміщення, Кондиціонер, Автонавіс, Автоматичні ворота, Балкон, Ванна, Огорожа, Камін, Сад, город, Підігрів підлоги, Душова кабіна, Автономний електрогенератор, Тераса
Комунікації: Асфальтована дорога, Електрика, Вивіз відходів, Каналізація септик, Свердловина
Телефонуйте та поїхали дивитися
Код: 88


















