Продається будинок Київська, Вишгородський, Хотянівка, Гранатова (№ 22-364-104)
Ціна: 140 000 $

Характеристики
| Ціна: | 140 000 $ | 
|---|---|
| № об'єкта: | 22-364-104 | 
| Тип: | будинок | 
| Поверхів: | 1 | 
| Спалень: | 4 | 
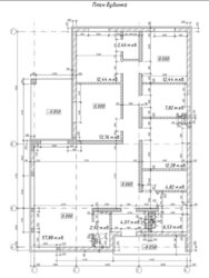
| Площа будинку: | 160 м2 | 
| Ділянка: | 7 сот | 
Адреса: Київська, Вишгородський, Хотянівка, Гранатова
Хотяновка, ,Пропонуємо купити новий будинок в містечку, що охороняється, Міжріччі Вишгородський р-н, с. Хотянівка, 9 км від Києва. Будинок загальною площею 160 м2. Ділянка 7 соток.
Будинок виконаний із якісних будматеріалів, за проектом Архону. Основа будинку - стрічковий фундамент 1.5 м. Утеплення стін 10 см мінеральною ватою. Побудований з енергозберігаючого керамблоку, дах із натуральної черепиці (Німеччина), утеплення даху 250 мм хв. Оздоблення фасаду декоративна штукатурка, вікна Rehau 8 камерні. Свердловина 60 м, септик переливний на 16 кубів. Заведено 5 кВт.
Котеджне містечко Міжріччя це сучасне КМ під Києвом, розташоване на березі річки. Десна з новою забудовою, розвиненою інфраструктурою та повним обслуговуванням на масиві. На території заведено газ, електрику, високошвидкісний інтернет, 4 дитячі майданчики, 2 дитячі садки, озера з пляжами загального користування, а для любителів справжньої риболовлі, з іншого боку обвідного каналу розкинулося Київське водосховище, оточене сосновим лісом. Також у місті діє пропускна система, відеоспостереження та охорона 24/7.




















 salarestate@gmail.com
 salarestate@gmail.com





